.jpg)
افراسيانت - يمضي الاحتلال الاسرائيلي في مشاريعه الاستيطانية التهويدية للقدس المحتلة وتحديداً المناطق المحيطة بالمسجد الاقصى والبلدة القديمة أو ما يطلق عليه الاحتلال زوراً "الحوض المقدس"، وجديده المستمر مخطط يحمل الرقم 4711 على جبل المكبر قبالة المسجد الأقصى المبارك.

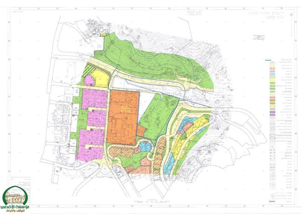
وكشفت مؤسسة "الأقصى للوقف والتراث"، امس الثلاثاء، بالخرائط والوثائق عن جزء من هذا المخطط الذي سيقام على مساحة نحو 75 دونماً من الأراضي الفلسطينية المحتلة عام 1967، وبمساحة إجمالية تصل إلى نحو 130 ألف متر مربع، ويشمل بناء ستة فنادق، بالإضافة إلى واجهات ومراكز تجارية وسياحية، ومطاعم ومقاهٍ، وقاعات للاجتماعات والمناسبات الجماهيرية وموقف للحافلات يتّسع لـ 26 حافلة، وموقف للسيارات الصغيرة والكبيرة يتسع لنحو 500 مركبة، على ما يسمى بـ"تل القصر" على قمة جبل المكبر في الجهة الجنوبية المطلة على المسجد الأقصى.

ووفق المخطط، فإن سعة الفنادق الستة تبلغ 1330غرفة فندقية، على النحو التالي: الفندق الأول سبع طوابق بسعة 180 غرفة، والثاني سبعة طوابق بسعة 150غرفة، والثالث ثمانية طوابق بسعة 180 غرفة، والرابع ثمانية طوابق بسعة 220 غرفة، والخامس سبعة طوابق بسعة 300 غرفة، والفندق السادس سبعة طوابق بسعة 300 غرفة.
وأشارت الوثائق إلى أن التخطيط لهذا المشروع بدأ في العام 1994، وصودق عليه بشكل نهائي في العام 2011، الأمر الذي أدى الى انطلاق أول مراحله بالمناقصة المذكورة قبل نحو أسبوعين، بالرغم من أن مراقبين ومختصين وباحثين في المجال السياحي ذكروا أن لا حاجة لمثل هذا المشروع، خاصة في الموقع المذكور، إذ أن سعة الفنادق الإسرائيلية في السنوات الأخيرة في القدس المحتلة تراوحت بين 50 و60 في المئة فقط.
ونهاية الشهر السابق، تمّت الدعوة إلى مناقصة أولية لبناء ثلاثة فنادق بسعة 580 غرفة، بدعم وتحفيز غير مسبوق من قبل وزارة السياحة الاسرائيلية، وما يسمى بـ "دائرة أراضي إسرائيل"، و"الشركة الوطنية السياحية"، وبلدية القدس المحتلة والتي تتبنى وتشارك في المشروع.
ولتحفيز تقديم اقتراحات للمناقصة والبدء بالعمل، أعلن عن محفزات منها، تقديم معونات مالية وتخفيضات ضريبية، للفائزين بالمناقصة، كما تعهّدت البلدية بتخصيص مرافق يساعد على التسريع بعملية البناء، فيما تعهّد متبنو المشروع بتمويل أعمال التطوير الأولية بقيمة نحو 15 مليون دولار، بالإضافة الى دفع رسوم للبلدية وشركة المياه "جيحون"، علماً أنه عادة ما تقوم الشركة المقاولة التي تفوز بالمناقصة بتمويل مثل هكذا أعمال.

ويُعتبر هذا المشروع من أخطر المشاريع التهويدية، كونه جزء من مخطط شامل لبناء طوق استيطاني تهويدي، عبر مشاريع استيطانية، من شأنها إحكام السيطرة على محيط المسجد الأقصى والقدس القديمة، خصوصاً وأن المناقصة الأولية تشكل نقطة بداية لبناء سلسلة من الفنادق والمراكز في مواقع قريبة ومقابلة ومشرفة بأغلبيها على الأقصى والقدس القديمة، من جهات عدة.
وأكدت سلطات الاحتلال أن هذا المشروع بشموليته هو ذو أفضلية على غيره من المشاريع الاستيطانية إذ يُنظر إلى موقع المخطط على أنه " ذو صبغة حساسة جداً، وذو منظر متميز، وله أبعاد تاريخية ودينية".
موقع السفير

